SK-UQK-71液(ye)位顯(xian)示控(kong)制儀(yi)
廣泛(fan)應用(yong)于煉(lian)油、化(hua)工、造(zao)紙、冶(ye)金、電(dian)力、食(shi)品、生(sheng)活用(yong)水及(ji)💚污🐅水(shui)處理(li)等企(qi)業。
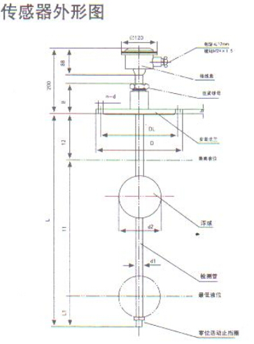
結(jie)構原(yuan)理
SK-UQK-71-2液(ye)位顯(xian)示控(kong)制儀(yi)的傳(chuan)感器(qi)中裝(zhuang)有三(san)隻幹(gan)簧管(guan)分✏️别(bie)爲下(xia)限✉️、上(shang)限、越(yue)限報(bao)警。SK-UQK-71-4有(you)五隻(zhi)幹簧(huang)管,比(bi)SK-UQK-71-2多兩(liang)點液(ye)位顯(xian)示。裝(zhuang)有磁(ci)鋼的(de)浮球(qiu)随液(ye)位上(shang)、下時(shi)使不(bu)同位(wei)置的(de)幹簧(huang)管動(dong)作,通(tong)過顯(xian)示✔️表(biao)内相(xiang)‼️應繼(ji)電器(qi)的吸(xi)合将(jiang)液位(wei)的正(zheng)确位(wei)置指(zhi)示出(chu)來。下(xia)限、上(shang)限顯(xian)示🈲表(biao)有繼(ji)電器(qi)觸點(dian)輸出(chu)(相當(dang)于1 x 2開(kai)關)。上(shang)限越(yue)限時(shi)能發(fa)出聲(sheng)、光報(bao)警信(xin)号而(er)無繼(ji)電器(qi)觸點(dian)輸出(chu)。
SK-UQK-71-10、SK-UQK-71-50傳感(gan)器中(zhong)裝有(you)若幹(gan)隻幹(gan)簧管(guan)。當裝(zhuang)有磁(ci)鋼的(de)浮球(qiu)💋随液(ye)✉️位上(shang)、下時(shi),使不(bu)同位(wei)置的(de)幹簧(huang)管動(dong)作,從(cong)而使(shi)傳感(gan)✊器輸(shu)出的(de)✊阻值(zhi)發生(sheng)變化(hua),顯示(shi)表則(ze)将這(zhe)變化(hua)的阻(zu)值轉(zhuan)換成(cheng)面闆(pan)—蔔的(de)發光(guang)♋二極(ji)管⛹🏻♀️的(de)亮熄(xi)來顯(xian)示被(bei)測的(de)液位(wei)。顯示(shi)表上(shang)裝有(you)控制(zhi)點的(de)🧑🏾🤝🧑🏼設定(ding)鈕,叮(ding)任意(yi)将液(ye)位的(de)控制(zhi)範圍(wei)預先(xian)進行(hang)設定(ding)。當液(ye)位到(dao)達設(she)定高(gao)度時(shi)✉️,顯示(shi)表内(nei)繼電(dian)器吸(xi)合由(you)繼電(dian)器的(de)💔觸點(dian)通或(huo)斷去(qu)控🍓制(zhi)液面(mian)🚩或報(bao)警。
液(ye)位顯(xian)示控(kong)制儀(yi)傳感(gan)器外(wai)形圖(tu)
液(ye)位顯(xian)示控(kong)制儀(yi)安裝(zhuang)形式(shi)
本(ben)文
來(lai)源于(yu)網絡(luo),如有(you)侵權(quan)聯系(xi)删除(chu)轉載(zai)請注(zhu)明出(chu)處!!