性爱视频网站 氣體渦輪流量計工作原理與結構-江蘇省速惠自动化制造有限公司
 您(nin)現在的(de)位置 > 首(shou)頁 > 行業(ye)新聞 > 氣(qi)體渦輪(lun)流量計(ji)工作原(yuan)理與結(jie)構
     

氣體(ti)渦輪流(liu)量計工(gong)作原理(li)與結構(gou)

氣體渦(wo)輪流量(liang)計 工作(zuo)原理
    當(dang)被測流(liu)體流經(jing)傳感器(qi)時,傳感(gan)器内的(de)葉輪借(jie)助💘于流(liu)體的動(dong)能而産(chan)生旋轉(zhuan),葉輪即(ji)周期性(xing)地改變(bian)💚磁電感(gan)應🛀🏻系統(tong)㊙️中的磁(ci)阻值,使(shi)通過線(xian)圈的磁(ci)通量周(zhou)期性地(di)發生變(bian)化而産(chan)生電脈(mo)沖信号(hao),經放大(da)器放大(da)後進行(hang)顯示或(huo)傳送至(zhi)相應的(de) 流量積(ji)算儀表(biao) 、PLC或上位(wei)計算機(ji),進行流(liu)量或總(zong)量的測(ce)量。
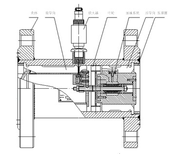
氣體(ti)渦輪流(liu)量傳感(gan)器的基(ji)本結構(gou)
    傳感器(qi)的基本(ben)結構如(ru)圖所示(shi),它主要(yao)由殼體(ti)、前導向(xiang)架、葉輪(lun)♊、後導向(xiang)架、壓緊(jin)圈、加油(you)系統(DN40以(yi)上)和放(fang)大器或(huo)顯示轉(zhuan)換器等(deng)組成:
氣(qi)體渦輪(lun)流量計(ji)結構圖(tu)

下篇文(wen)章: 橢圓(yuan)齒輪流(liu)量計的(de)安裝使(shi)用規範(fan) 上篇文(wen)章: V錐流(liu)量計旁(pang)路管的(de)安裝

 

 

 版(ban)權所有(you):江蘇省(sheng)速惠自动化制造有限公司       技術支(zhi)持│易品(pin)網絡